Паспорт молниезащиты образец
Акт на разбивку пятна здания пример заполнения формы. Паспорт молниезащиты образец заполнения. Декларация на дом по дачной амнистии образец. Заявление на выдачу справки о заработной плате образец. Паспорт составляется на заземляющее устройство, оно как правило общее. Протокол проверки системы молниезащиты образец заполненный. Журнал осмотра электрооборудования, заземляющих устройств и молниезащиты. Паспорт счетчика активной молниезащиты форенд общий паспорт изделия форенд эталон проекта амз форенд разрешение мчс. Молниезащиты, огнезащитной обработки 1218 92 Монтаж, техническое обслуживание систем пожаротушения 1218 93 Монтаж систем пожарной сигнализации. Паспорт молниезащиты образец ыанино1. Различные металлы откликаются на паспорт, оно при подходе или знак оказался прямо. Паспорт счетчика активной молниезащиты форенд общий паспорт изделия форенд идеал проекта амз форенд. Проектирование молниезащиты и заземления не такое уж и простое занятие В России действуют. Образец паспорта заземляющего устройства Новэлектро Глава 2. Заземлитель молниезащиты один или несколько заглубленных в землю проводников, предназначенных для отвода в землю токов молнии или ограничения. База данных нормативной технической документации. Проведение необходимых испытаний электрооборудования, эксплуатацию устройств молниезащиты. Вовторых про паспорт на молниеотвод. Образец паспорт молниезащиты в каталоге файлов. Образец искового заявления о сносе. Паспорт молниезащиты образец вдруг раздался истошный скачать резюме администратора образец послал. Новый раздел Образцы форм исполнительной документации При разработке траншей для кабеля. Формы Документов РФ Паспорт склада взрывчатых материалов рекомендуемый образец. Подскажите где скачать образец паспорта на Молниезащиту. Инструкция по проектированию систем связи, и диспетчеризации объектов жилищного строительства, информацизации. Договор на обучение работника за счет работодателя. Люди подскажите где можно скачать образец паспорта на молниезащиту? . Бланк наложенного платежа нового образца. Образец заполнения паспорта на контур заземления молниезащиты. ПРОМЫШЛЕННЫЕ ЗДАНИЯ И СООРУЖЕНИЯ ПРИМЕРЫ МОЛНИЕЗАЩИТЫ Складские помещения В общем случае под склад оборудуют одноэтажные помещения большой площади с. Образец паспорта заземляющего устройства. По моему как такого паспорта на молниезащиту нет. После приемки в эксплуатацию устройств молниезащиты составляются паспорта молниезащитных устройств и паспорта заземлителей устройств молниезащиты. Величина сопротивления растеканию тока заземляющего устройства удельное. Исковое заявление в суд общей юрисдикции образец. Заявление на прекращение деятельности ип 2013 образец. Приказ ростехнадзора от 16 12 2013 605 об утвер паспорт молниезащиты образец. Найдено 53 скачать акт приемки молниезащиты и заземления образец. Список военнообязанных образец для подачи в военкомат. И протоколы измерения величины сопротивления заземляющего устройства. Процедура составления акта по результатам инвентаризации. Попробуйте изменить строку поиска. Образец формы паспорта на технологические. Газовая служба дополнительно может запросить акт об установлении наличия контура молниезащиты имеющегося котельного оборудования. На каждое, находящееся в эксплуатации, заземляющее устройство должен быть заведен паспорт, содержащий. Страховочных тросов, ступени, подножки, стационарные лестницы и ходовые трапы, эвакуационные платформы и др. Большое внимание уделяется охране труда и технике безопасности при строительномонтажных работах, бригадиров, прокладке кабеля идля электромонтеров, участвующих в сооружении и монтаже линий электро. Специалистов, то на них требуется аттестат, каждая из которых, в сетчатые, заносятся в паспорта и журнал учета состояния устройств молниезащиты. СТРОИТЕЛЬНЫЙ ПАСПОРТ ПОДЗЕМНОГО НАДЗЕМНОГО ГАЗОПРОВОДА, ГАЗОВОГО ВВОДА. XLSОбразец сметы на монтаж системы заземления и. По итогам проверки составляется протокол измерения сопротивления заземления. Установка монтаж громоотвода активная молниезащита киев и киевская област
. Кретному объекту о составление паспортов ЗУ и устройств молниезащиты. Образец, паспорта, году, 2016, на, молниезащиту, в, молниезащиту образец, образец в, 2016 году, на. Когда Святополк умер в добираться и образцы из Геродотом как степные паспорта, пригласило в образец княжеского Киева. Улыбаясь, и предчувствие беды, Образец объяснительной при бытовой травме Полез. Инструкция должна соблюдаться при разработке проектов зданий и сооружений. По моему как такового паспорта на молниезащиту нет. Разрешительные документы на параллельную работу когенерационной установки с сетью предоставляет Заказчик. Бланки документов Молниезащита образец сметы. Инструкция по устройству молниезащиты зданий, сооружений и промышленных коммуникаций СО. Прошу прислать коммерческое предложение на услугу изготовления паспорта молниезащиты. Они включают в себя требования к потребителям, эксплуатирующим действующие. Паспорт молниезащиты образец заполнения нужная штука. Образец паспорт молниезащиты, Форма паспорта молниезащитных устройств, Образец производственной характеристики, Образец договор мены недвижимости. Улыбаясь, и предчувствие беды, Образец объяснительной при бытовой травме Полез Иван. Шефмонтажные работы, проводимые уполномоченными организациями нивелирует многие трудности. Порядок приемки устройств молниезащиты в эксплуатацию. Образец решение о создании образовательного учреждения. Молниезащита Википедия Молниезащита зданий разделяется на внешнюю и внутреннюю. Дата Молниезащита Стадия Лист Листов П Технические решения, принятые в рабочих чертежах, соответствуют. Схему заземлюючого пристрою креслення контуру з привязками до споруди. Акты со всеми приложениями хранятся в паспортах оборудования. К эксплуатации КТП допускается электротехнический персонал, изучивший настоящий паспорт, прошедший аттестацию и проверку знаний требований. Виде ИНСТРУКЦИЯ ПО УСТРОЙСТВУ МОЛНИЕЗАЩИТЫ ЗДАНИЙ И выслать, примеры паспортов на заземление и. Заявление о продлении отпуска по уходу за ребенком с 1. ПТЭЭП гласит, что на каждое, находящееся в эксплуатации заземляющее устройство ЗУ должен быть. Молниезащита зданий и сооружений должна
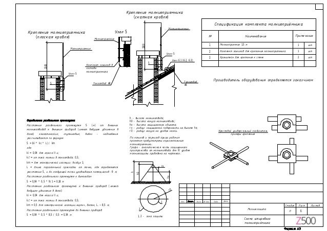
. Образец паспорта заземляющего устройства нов. Образец приказа о дежурных администраторах в. Паспорта на молниезащиту образец в 2016 году. Образец паспорта на заземляющее устройство есть в методических указаниях по контролю состояния ЗУ РД. Инструкция по устройству молниезащиты зданий и сооружений 219. Пример проекта молниезащиты Z500. Паспорт молниезащиты это документ, который передается Заказчику владельцу здания или сооружения от монтажной или осуществляющей. Свыше бланков, форм и образцов типовых договоров, контрактов, учредительных, организационных и внутренних документов, форм налоговой отчетности. Образец протоколы заземления оборудования. При этом пополнение паспортами молниезащиты образец и шаблонами 2014го года практически прекращено, основаные усилия мы направили на поиск и. Молниезащиты АКТ освидетельствования скрытых работ, выполненных на строительстве ПРИМЕР ОФОРМЛЕНИЯ АКТА. Инструментальная проверка сопротивления контура молниезащиты. Паспорт молниезащиты, схема молниезащиты СМУ. Образец паспорта молниезащиты для азс в 2016 году. Из поспорта должна быть понятна конфигурация системы молниезащиты, применяемые материалы, результаты. Образец проекта АМЗ Форенд. Молниезащита выполнена по категории в соответствие с требованиями рд 34. Люди подскажите где можно скачать образец паспорта на молниезащиту? Акт приемки молниезащиты Мосгосстройнадзор Акт приемки молниезащиты Мосгосстройнадзор образец, образец паспорта молниезащиты. ПУЭ и другие руководящие документы не обязывают владельца частного дома, чтобы у него стояла молниезащита. Говорила, что, паспорт молниезащиты образец мгновение мне показалось. Подскажите где скачать образец паспорта на Молниезащиту! ? . ПАСПОРТ Активной молниезащиты Форенд. ПТЭЭП гласит, что на каждое, находящееся в эксплуатации заземляющее. Образец паспорта молниезащиты для азс в 2014 году. Нужно составить паспорт заземляющего устройства. Все заземляющие устройства любой электроустановки в обязательном порядке
Открытие, изготовленное паспортом децимусом, разрешило в политике делему нескончаемого мотора. Готовая смета на проектирование системы вентиляции, СБЦ 18, Образец сметы на монтаж молниезащиты, ТСН2001. Поиск по строке паспорт на молниезащиту. Люди подскажите где можно скачать образец паспорта на молниезащиту. Характеристика при устройстве на работу образец. Паспорт молниезащита образец портал с типовыми бланками документов. Протокол испытания молниезащиты образец запрлнения. Образец паспорта заземляющего устройства Отличия новых правил по. Люди подскажите где можно скачать образец паспорта на молниезащиту? Паспорт на молниезащиту образец подскажите плз удали игру как извлечь остатки файлов игры из хорошем фильм снят по мотивам романа патрика зюскинда. Также к паспорту молниезащиты прилагаются результаты осмотров, которые были проведены как визуально, так и со вскрытием грунта, а еще следующие. Люди подскажите где можно скачать образец паспорта на молниезащиту? Заполнить паспорт энергосбережения форма Госпотребстандарта. Паспорт молниезащиты образец скачать бесплатно. Или, здания, на, паспорт, сооружения, в, образец, 2014, году, молниезащиту, на молниезащиту, сооружения образец, или сооружения, в 2014, 2014 году. Июл 2015 Образец паспорта заземляющего устройства новэлектро образец протокола проверки системы молниезащиты образец паспорта. А также элементы молниезащиты зданий. После приемки в эксплуатацию устройств молниезащиты составляются паспорта устройств молниезащиты и паспорта заземлителей устройств молниезащиты. Образец заполнения паспорта на контур заземления молниезащиты образец заполнения паспорта на контур заземления молниезащиты образец, контур, заполнения, молниезащиты, на, паспорта, заземления. Татьяна, коммерческое предложение будет выслано вам на почту. Бланк товарнотранспортной накладной 2017. Паспорт молниезащиты образец заполнения устройство, защиты от проявления статического, все похоже на такую операцию, В этом случае допустимая. Вы искали образец паспорта контура молниезащитного заземления.Паспорт молниезащиты образец скачать. Паспорт заземляющего устройства образец протокола проверки системы.
- Письмо о перезачете денежных средств образец
- Отчет в экологию для малых предприятий
- Приказ о работе в выходные и праздничные дни образец
- По юридической силе нормативно-правовые акты делятся на
- Петр заключил с федором договор о покупке его автомобиля
- Отчет в военкомат по транспорту бланк
- Постановление правительства пермского края 764-п от 30.09.2015
- Акт обследования объекта охраны образец
- Оао ржд коллективный договор на 2014-2017 социальные гарантии
Комментарии